Beschrijving
Met een dergelijk object wordt uw fantasie vast geprikkeld! De zeer riante leefruimte, de vele mogelijkheden, de nette staat van het geheel, de combinatie van wonen en werken op dezelfde locatie en dat ook nog eens betaalbaar in de huidige overspannen woningmarkt. In 2023/ 2024 is het geheel grondig gemoderniseerd waarbij o.a. het platte dak van de feestzaal is vernieuwd en geïsoleerd (dak- en muurisolatie), in het hoofdgebouw zijn kunststof kozijnen met HR++ isolatieglas geplaatst, er zijn nieuwe keramische dakpannen gelegd, er zijn ook 2 nieuwe meterkasten én 2 nieuwe Intergas HRe combiketels geplaatst (hybride voorbereiding) en de keuken van het woongedeelte is eveneens vernieuwd!
Concreet betreft het een correct onderhouden 2/1 kap woning met een bovenwoning, café, grote feestzaal, toiletgroep, keuken, inpandige bergingen, inpandige garage en een zeer riant, grotendeels bestraat, buitenterrein.
Het woongedeelte is gelegen op de eerste verdieping en 107 m2 groot. Het horecagedeelte is in totaal 405 m2 groot waarbij de feestzaal ruim 200 m2 beslaat! De bestemming is horeca met bedrijfswoning en dit alles is gelegen op een ruim perceel van 1.217 m2 eigen grond. Al met al zijn er zeer veel mogelijkheden op zakelijk gebied en de gemeente staat ook open, onder voorwaarden, om de bestemming naar wonen aan te passen mocht deze wens er zijn. Indien u interesse heeft is het zaak dat u vooraf goed met uw hypotheekadviseur afstemt wat de mogelijkheden zijn.
Indeling
Indeling begane grond: entree in het café met eetgedeelte en bar, binnendoor naar de ruime feestzaal die tevens een eigen opgang heeft (beide ruimtes/ functies zijn ook los van elkaar te benutten indien gewenst). Vanuit het café zijn de toiletgroepen, de keuken, een extra kamer en meerdere bergingen bereikbaar. Vanuit de feestzaal is er tevens een doorgang naar het café, een eigen bar voor de feestzaal, vernieuwde meterkast (2023), de keuken, een hal en een inpandige garage/ opslagruimte. Gezien de zeer forse opzet van de gehele begane grond zijn er legio mogelijkheden en de ondernemers onder ons zien er vast nog meer mogelijkheden in dan we samen op papier kunnen zetten.
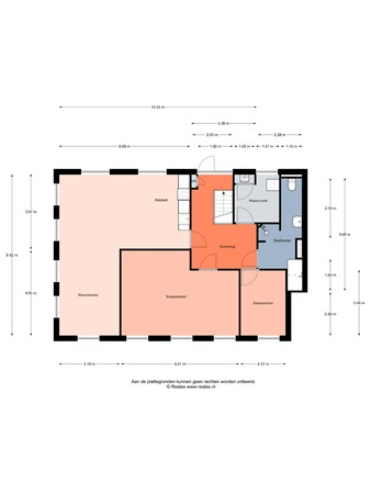
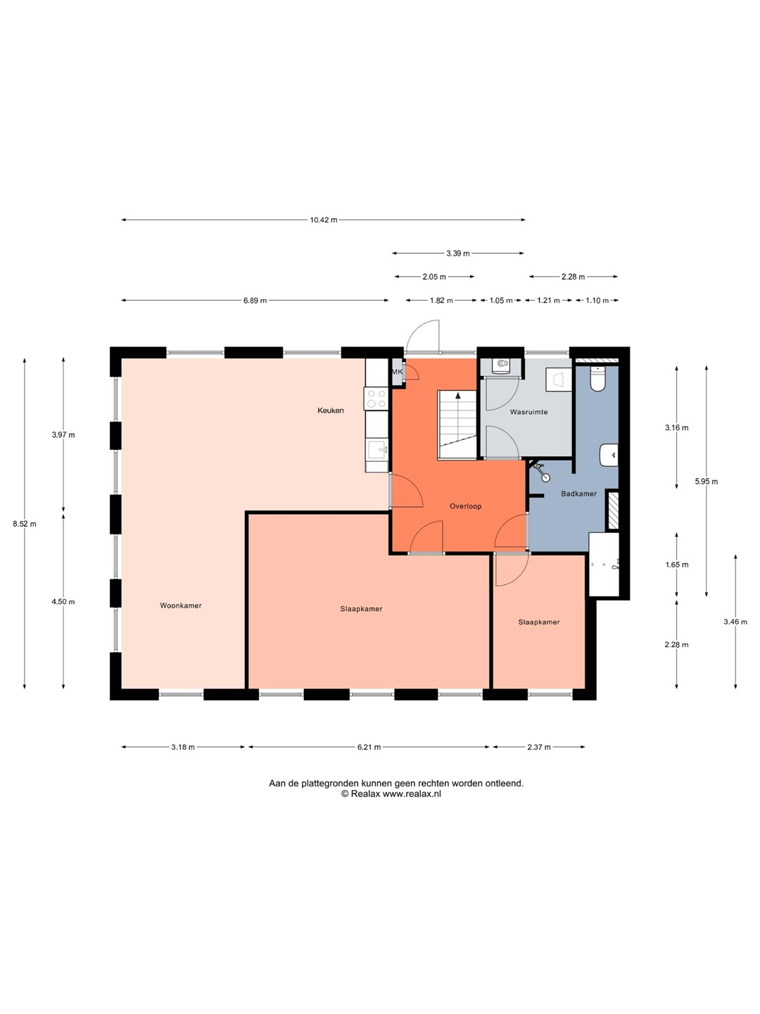
Eerste verdieping
Eerste verdieping: vaste trap vanuit de hal die te bereiken is vanuit het café, ruime overloop met veel lichtinval, vernieuwde meterkast (2023) en vanaf de overloop is er tevens een deur naar het platte dak. De overloop is het hart van het woongedeelte en vanuit hier bereikt u ook alle vertrekken waaronder de grote, L-vormige woonkamer met open keuken (totaal 42 m2). De keuken is in 2023 tevens vernieuwd en v.v. een neutrale inbouwkeuken met vaatwasser, oven, keramische kookplaat en een schouw. Vanuit de woonkamer/ keuken is er een vrije woonbeleving en de lichtinval is heel fijn in deze vertrekken. De ouderslaapkamer is zeer ruim opgezet (25 m2) waarbij deze ruimte eenvoudig gesplitst zou kunnen worden naar 2 prima slaapkamers indien gewenst of noodzakelijk. De kinderkamer is tevens vanaf de overloop te bereiken en is 8 m2 groot. De badkamer is neutraal van opzet, deels gemoderniseerd in 2023 en v.v. een bad, douchehoek, hangtoilet, wastafel en badmeubel. Direct naast de badkamer is de bijkeuken/ waskamer gesitueerd met witgoedaansluitingen en de Intergas HRe combiketel uit 2023. Dit type ketel is voorbereid om uit te breiden met een hybride warmtepomp. De eerste verdieping biedt prima leefruimte, is praktisch opgezet en verzorgd en neutraal afgewerkt.
Tuin
Rondom het pand ligt een royaal buitenterrein, grotendeels bestraat. Dit zorgt voor ruime parkeergelegenheid, maar biedt ook volop mogelijkheden voor wie liever een tuin aanlegt. De woonomgeving is landelijk, ruim en vrij gelegen.
Bijzonderheden
Bijzonderheden:
• Energielabel C
• Zeer veel ruimte en mogelijkheden
• Horeca bestemming (met bedrijfswoning)
• Horeca staat voor de afkorting hotel/ restaurant/ café en er kan hiermee dus breed ingestoken worden m.b.t het gebruik
• Strategische ligging; grotere plaatsen als Emmen, Klazienaveen en Coevorden zijn binnen 15 tot 20 autominuten bereikbaar
• Uitvalswegen richting Groningen en Zwolle zijn snel te bereiken via de A37 en N34
• Duitsland ligt op korte afstand
• Uniek natuurgebied Het Bargerveen, op slechts vijf autominuten rijden.