Beschrijving
Starters opgelet! Deze mooie jaren '20 tussenwoning is voorzien van een moderne keuken, badkamer en toilet en heeft drie slaapkamers. Daarnaast is er een bijkeuken met ruimte voor witgoed en een knusse stadstuin met achterom. Het geheel is netjes afgewerkt waardoor je er zó in kunt. Bovendien is de ligging ideaal; dichtbij het centrum met alle voorzieningen, het Abbingapark en uitvalswegen. Zie jij jezelf hier al wonen?
Wonen in de wijk Huizum-Bornia in Leeuwarden
Deze woning ligt in de geliefde wijk Huizum-Bornia, centraal in Leeuwarden dichtbij de Hogeschool Van Hall, Aeres MBO en het ziekenhuis. Het is een gezellige buurt en het centrum ("De Schrans") is op loopafstand. Ook het NS-treinstation is slechts 1,5 kilometer verwijderd. Voorzieningen zoals supermarkten, winkels en sportgelegenheden zijn daarmee binnen handbereik. Hou je meer van even terugtrekken in het groen? Dan loop je in 5 minuten naar het Abbingapark.
Indeling
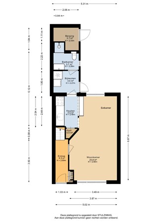
Begane grond:
Via de entree aan de voorzijde van de woning komen we binnen in de lange hal waar ook de meterkast en de trapopgang naar boven zijn gesitueerd. Vervolgens slaan we rechtsaf naar de woonkamer met grote raampartijen aan voor- en achterzijde. De woonkamer is netjes afgewerkt en voorzien van een fraaie vloer waardoor het een modern, licht en rustig geheel vormt. Aan de achterzijde is de keuken afgescheiden van de kamer met een barzitje, zodat deze aan het directe zicht is onttrokken. De keuken is zwart met een lage opstelling en is strak afgewerkt. Daarnaast is er diverse inbouwapparatuur, zoals een vaatwasser, keramische kookplaat, Quooker en combi-oven. Ook is er een ruime ingebouwde provisiekast. Aansluitend is de bijkeuken gelegen met ruimte voor een grote koel-vriescombinatie en witgoed. Vanuit hier heb je ook directe toegang tot de tuin en de luxe, moderne badkamer met douche, hangtoilet, wastafel met meubel en design radiator.
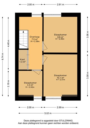
Eerste verdieping
Via de ruime, lichte overloop zijn de drie slaapkamers te bereiken van ca. 4, 9 en 10 m². Ook hier valt de hoge kwaliteit van de afwerking op! De kamers zelf zijn mooi licht en voorzien van een fraaie laminaatvloer. Bovendien is er extra opbergruimte gecreëerd met de grote inbouwkast die vanuit de overloop te bereiken is.
Tuin
De knusse stadstuin achter de woning is te bereiken via de achtergelegen steeg en via de bijkeuken. Je fiets kun je parkeren in de stenen berging die achter de aanbouw is gelegen. Omdat de tuin volledig is omheind kun je hier heerlijk beschut genieten van een kopje koffie en een goed boek! Zie jij jezelf al zitten?
Bijzonderheden
- Prachtige en sfeervolle jaren '20 woning
- Ideale locatie vlakbij voorzieningen en het Abbingapark
- Luxe en moderne keuken, badkamer en toilet
- Drie slaapkamers
- Knusse stadstuin met achterom
- CV-ketel Intergas, 2023, eigendom