Beschrijving

Ben je op zoek naar een vrijstaande, energiezuinige woning in Opende met maar liefst vijf slaapkamers en een luxe afwerking? Dan is deze woning op Sjallemastraat 16 wellicht de woning die je zoekt! Zowel de woning als de tuin zijn zeer verzorgd, de begane grond is voorzien van vloerverwarming en de gehele woning is voorzien van kunststof kozijnen met HR++ glas (2021). De hoge kwaliteit materialen die zijn gebruikt zie je overal terug; op de vloeren, de wanden, de luxe keuken en de prachtige badkamer. Zie jij jezelf hier al wonen?

Opende 
De woning ligt aan de rand van de dorpskern van Opende is een dorp met veel rust en ruimte en tegelijk alle voorzieningen binnen handbereik. Er zijn scholen, sportmogelijkheden en er is een supermarkt. Ook is er het Baron Theater met jaarlijks diverse voorstellingen. Opende ligt tegen Surhuisterveen aan, waar nog meer voorzieningen te vinden zijn, zoals meerdere scholen, supermarkten, horeca en vele winkels en openbaar vervoer. Binnen 10 autominuten is de A7 te bereiken, waardoor je ook snel in Groningen, Drachten, Heerenveen en Leeuwarden bent.

Indeling

Begane grond:
Via de entree aan de voorzijde van de woning komen we binnen in de hal, waar ook het toilet, de meterkast en de trapopgang naar boven zijn gesitueerd. Aan de rechterkant is een kamer gelegen die zowel als slaapkamer of als studeerkamer kan worden gebruikt. Vanuit de hal lopen we rechtdoor naar de woonkamer met half open keuken. De gehele begane grond is overigens voorzien van vloerverwarming voor extra comfort. Hoewel de keuken half open is, komt het verschil in ruimtes mooi tot zijn recht doordat de keuken is voorzien van een prachtige pvc-vloer met tegellook en in de woonkamer een pvc-vloer met houtlook. Dit zorgt ook voor een warme sfeer in de woonkamer. De hoge kwaliteit afwerking is te zien aan de strak gestucte wanden, hoge plinten en kunststof kozijnen. Ook de keuken is luxe te noemen met diverse inbouwapparatuur, zoals een inductiekookplaat (3-fasen aansluiting), combimagnetron, koelkast en vaatwasser. Aan het kookeiland is bovendien een barzitje gecreëerd, zodat je je gesprek niet hoeft te onderbreken tijdens het koken. Via de tuindeur stap je zó de prachtige tuin in! Aansluitend bij de keuken is een berging met ruimte voor een grote koel-vriescombinatie en het opbergen van provisie. Naast de keuken is ook de bijkeuken gelegen met ruimte voor witgoed en een spoelbak. Vanuit hier heb je direct toegang tot de tuin en de aangebouwde garage.

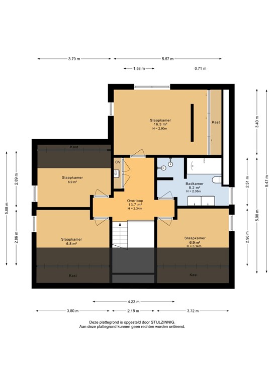
Eerste verdieping

Via de ruime, centrale overloop zijn de vier slaapkamers te bereiken (ca. 7, 7, 7 en 16 m²) en de luxe badkamer met ligbad, inloopdouche, hangtoilet en dubbele wastafel met meubel. Ook hier is het geheel prachtig en luxe afgewerkt. De gehele verdieping is tevens voorzien van kunststof kozijnen. In de grootste slaapkamer is een wandvullende inbouwkast fraai weggewerkt achter het bed.

Tuin

De woning staat op een ruim hoekperceel (ca. 525 m²) dat rondom de woning is gelegen. De tuin is al even verzorgd als de binnenkant met verschillende sfeervolle hoekjes, fraai aangelegde terrassen, borders en beplanting. Ook is er ruimte gemaakt voor kinderen om te kunnen spelen (zoals een trampoline en schommel). Zowel zon- als schaduwliefhebbers kunnen hier hun hart ophalen! Zie jij jezelf al zitten met een kop koffie en een goed boek?

Bijzonderheden

- Energielabel A
- Begane grond voorzien van vloerverwarming en prachtige pvc-vloeren
- Luxe keuken met kookeiland en barzitje
- Extra kamer op de begane grond met verschillende mogelijkheden
- Nog eens vier slaapkamers op de eerste verdieping
- Luxe badkamer met ligbad, inloopdouche, toilet en dubbele wastafel met meubel
- Ruim hoekperceel (ca. 525 m²) met zeer verzorgde tuin
- Kunststof kozijnen met HR++ glas (2021)
- De uitbouw is in 2021 gerealiseerd

Kenmerken