Verkocht: De Dellen 53, 9231 EA Surhuisterveen
Verkocht: De Dellen 53, 9231 EA Surhuisterveen
Verkocht: De Dellen 53, 9231 EA Surhuisterveen
Verkocht C

De Dellen 53, 9231 EA Surhuisterveen

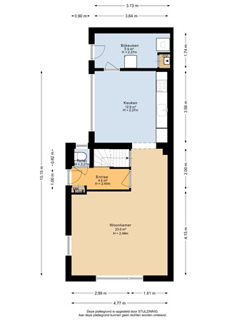
Beschrijving De Dellen 53

Ben je op zoek naar een nette 2-onder-1-kapwoning met een zeer ruime tuin met veel privacy vlakbij het centrum van Surhuisterveen? Dan is deze woning op De Dellen 53 wellicht de woning die je zoekt! De woning heeft een moderne keuken en badkamer en drie slaapkamers. Daarnaast is er een woonkeuken...

Kenmerken

Type object Woonhuis, eengezinswoning, twee onder een kap woning
Bouwperiode 1960
Status Verkocht
Aangeboden sinds Dinsdag 20 mei 2025