Beschrijving

Ben je op zoek naar een nette 2-onder-1-kapwoning met een zeer ruime tuin met veel privacy vlakbij het centrum van Surhuisterveen? Dan is deze woning op De Dellen 53 wellicht de woning die je zoekt! De woning heeft een moderne keuken en badkamer en drie slaapkamers. Daarnaast is er een woonkeuken met plek voor een eettafel, een nette bijkeuken en een vliering voor extra opbergruimte. En wat dacht je van de grote vrijstaande garage? Zie jij jezelf hier al wonen?

Surhuisterveen
De woning staat op een vrij en groen gedeelte van de straat De Dellen (met hertenkampje!) in het veelzijdige dorp Surhuisterveen met uitgebreide voorzieningen. Aan het einde van de straat fiets je zó het centrum in! Hier zijn vele winkels, meerdere supermarkten, basis- en middelbare scholen en zorgvoorzieningen te vinden. Ook zijn er verschillende sportverenigingen, een zwembad en gezellige horecagelegenheden. In het gezellige dorp worden regelmatig activiteiten georganiseerd. Bovendien rijd je binnen 10 minuten met de auto op de A7 richting Heerenveen of Groningen.

Indeling

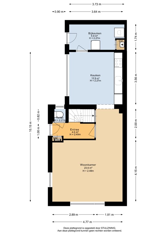
Begane grond:

Via de zijentree komen we binnen in de hal, waar ook het toilet, de meterkast en de trapopgang naar boven zijn gesitueerd. Vervolgens lopen we door naar de L-vormige woonkamer met grote raampartij aan de voorzijde voor veel natuurlijk lichtinval. Aansluitend is de halfopen woonkeuken gelegen. Deze is uitgevoerd met houtkleurige deuren en strakke grepen. De hoge, donkere spatwand is niet alleen onderhoudsvriendelijk, maar zorgt ook voor een moderne uitstraling. Verder is de keuken voorzien van inbouwapparatuur, zoals een oven, inductiekookplaat, koelkast, vaatwasser en afzuigkap. Achter de keuken is de bijkeuken gerealiseerd, waar plek voor meer witgoed is. De cv-opstelling fraai uit het zicht gewerkt. Daarnaast heb je vanuit hier direct toegang tot de tuin.

Eerste verdieping

Via de overloop zijn de drie slaapkamers te bereiken (ca. 5, 7 en 10 m²), waarvan één voorzien is van een inbouwkast. De kleinste slaapkamer heeft bovendien toegang tot het dak van de uitbouw. Daarnaast is er een moderne badkamer met hangend wastafelmeubel en ruime inloop regendouche.

Tweede verdieping

Met een vlizotrap / luik is de vliering te bereiken. Ideaal voor het opbergen van spullen die je niet dagelijks hoeft te gebruiken.

Tuin

Naast een nette voortuin is de ruime oprit gelegen met parkeerplek voor meerdere auto's. De achtertuin is gelegen op het noordwesten en volledig bestraat. Er is plek voor diverse zitopstellingen. Doordat je wordt omringd door groen en er geen achtergelegen woningen zijn geniet je van veel privacy. Daarnaast is er een vrijstaande houten garage met zowel een garage- als een loopdeur. Bovendien is er schuin tegenover de woning een hertenkampje voor een gezellige wandeling of picknick.

Bijzonderheden

- Nette, comfortabele 2-onder-1-kapwoning met zeer ruime tuin en veel privacy!
- L-vormige woonkamer en moderne woonkeuken
- Drie slaapkamers
- Kleine, maar zeer fraaie badkamer
- Bergzolder 
- Veel parkeerruimte op eigen terrein
- Grote, vrijstaande garage
- Gelegen op een ideale locatie, omringd door groen en dichtbij het centrum

Kenmerken